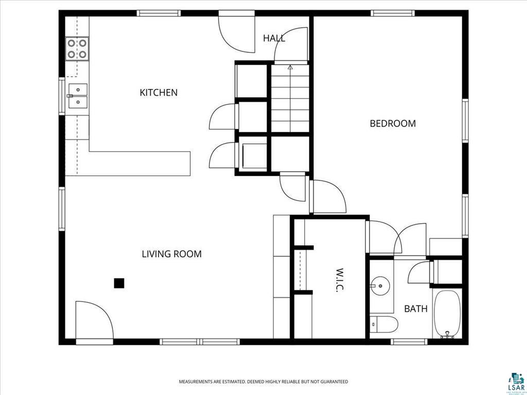
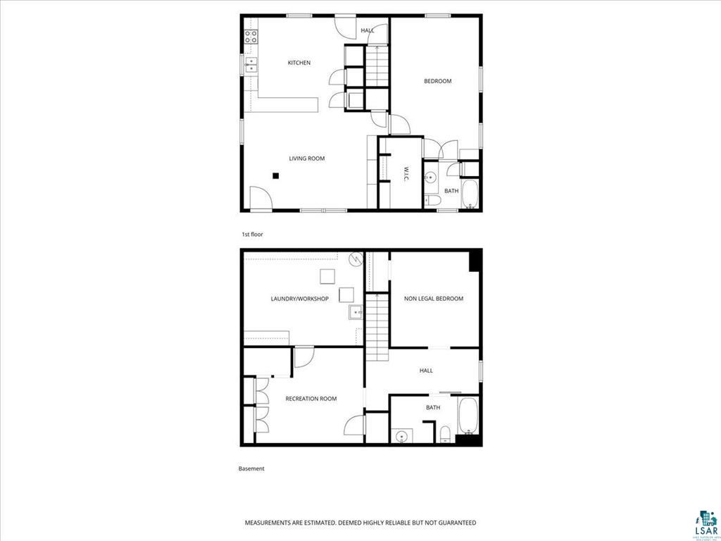
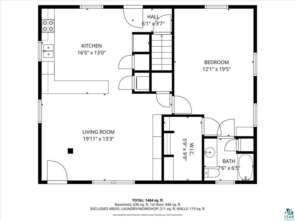
Whether you’re looking to downsize or just starting out in home ownership, this home might be the one you’ve been waiting for! This home is conveniently close to Community Memorial Hospital, Raiter Clinic, and Churchill Elementary. Offering main level living, an open floor plan, tons of storage space and lots of natural light, this home is sure to check a lot of your wish list items. The spacious main floor bedroom offers an ensuite and cedar-lined walk-in closet. There is main floor and lower-level laundry, kitchen pantry and lovely accent wall with shelving in the living room. The basement features a second (non-conforming) bedroom with an egress window and full bathroom with soaking tub right outside the bedroom door. A nice recreation room and utility room offer lots of options and potential for us. Outside, you’ll appreciate the large beautifully landscaped corner lot, fully fenced-in yard, maintenance-free 12×14 deck and 3 -season porch attached to the garage. Enjoy afternoons in the shade with the retractable “Sun Setter” awning that covers the deck at the touch of a button. Peonies, roses, hydrangeas, hosta, daylilies and more can be found in the landscaping along with a maple and flowering crab tree, making it a beautiful, park-like setting in the summer. There is also a 12×10 garden shed. Don’t miss your chance to call this cute, well-maintained, move-in-ready home yours.
FEATURED PENDING
804 Slate Street
Cloquet, Minnesota 55720
$289,900
- Bed1
- Bath2
- Parking1 car detached garage
- Sq Ft1,587
- Price Per Sq Ft
- Year Built1991
- Lot Size.27 Acres
- TypeSingle Family Home
- Property ID #6124493

4 weeks ago
Request More Information
Est. Payment $1,107/mo
